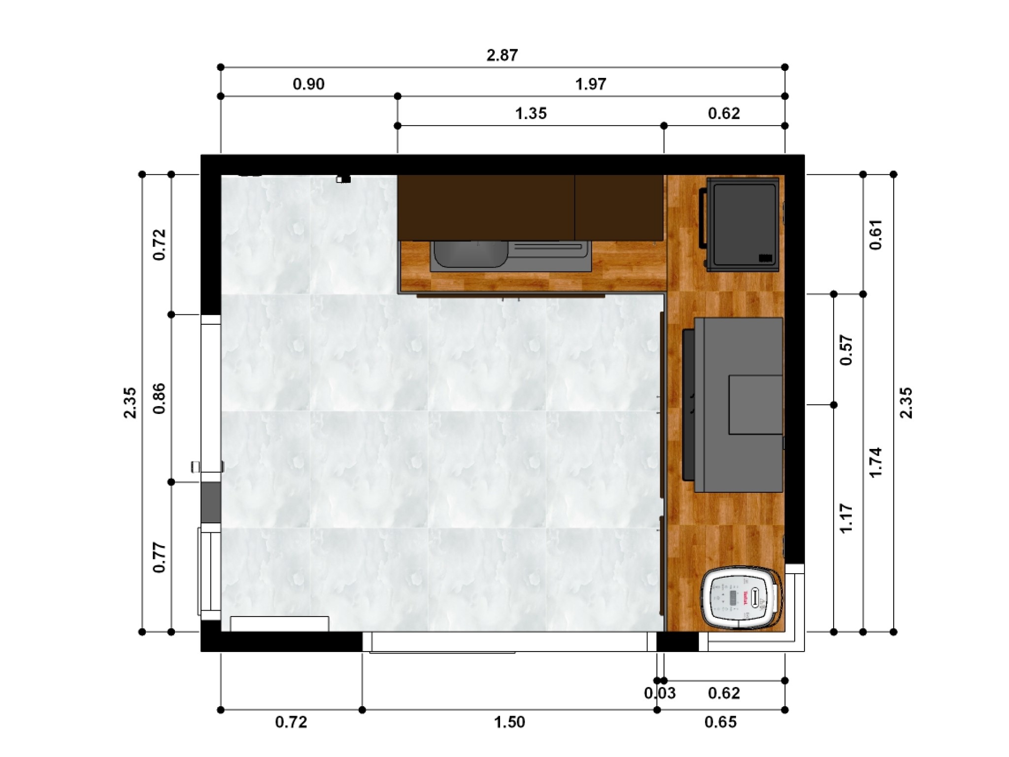
ห้องอื่นๆ สไตล์ โมเดิร์น รหัส 311KDI

HomePro ครบครันเรื่องบ้าน ทั้งสินค้าและบริการ

HomePro มุ่งเน้นในการที่จะก้าวขึ้นมาเป็นผู้นำในธุรกิจ Home Solution and Living Experience ในประเทศไทยและภูมิภาคเอเชียตะวันออกเฉียงใต้ HomePro จึงกลายเป็นศูนย์รวมของใช้ภายในบ้านและนอกบ้าน เฟอร์นิเจอร์ตกแต่งบ้าน และเครื่องใช้ไฟฟ้าต่างๆ รวมถึงบริการต่างๆเกี่ยวกับอาคารบ้านเรือน ไม่ว่าจะเป็นบริการก่อสร้าง ต่อเติม ตกแต่ง ซ่อมแซม ปรับปรุง ทำความสะอาด หรือออกแบบอาคาร บ้าน และที่พักอาศัยให้กับคุณแบบครบวงจร (One Stop Shopping Home Center)

ซื้อง่ายจ่ายสะดวก กับทุกช่องทางออนไลน์และหลากหลายช่องทางการชำระเงิน

ทุกวันนี้ช่องทางการซื้อขายออนไลน์กำลังเป็นที่แพร่หลาย HomePro จึงตั้งเป้าหมายเพื่อให้ลูกค้าทุกท่านช้อปปิ้งได้อย่างง่ายดาย จากทุกที่ทุกเวลาผ่าน HomePro Application และ HomePro ให้ความสำคัญกับช่องทางการซื้อขายออนไลน์ ดังนั้น HomePro บริการการชำระเงินในหลากหลายช่องทางที่ทั้งสะดวกและปลอดภัยสำหรับลูกค้าทุกท่าน
 
 
เพิ่มสินค้าจำนวน 
{product_name}
จำนวน 1
สินค้าแนะนำ